Please ensure Javascript is enabled for purposes of website accessibility Clubhouse Village at Glacier - Glacier Club
Inquire

Clubhouse Village
at Glacier

Steps from Glacier’s Mountain Clubhouse and surrounded by the awe-inspiring San Juan Mountains, Clubhouse Village introduces a new collection of standalone mountain homes thoughtfully designed for those who seek a harmonious balance of connection and privacy. Set amidst towering ponderosa pines and three million acres of protected wilderness, this exclusive enclave offers modern comfort immersed in the serenity of nature.

  • A New Chapter In Mountain Living

    The first phase of Clubhouse Village consists of seven standalone design-built homes and one turnkey spec home, each carefully crafted to offer a seamless blend of modern convenience and natural beauty.

    This enclave has begun construction. Pricing starts at $2,869,900.

    Features

    • 4 bedroom open-concept floor plans
    • 2-car garages
    • Expansive outdoor terraces
    • Floor-to-ceiling windows
    • Down-valley views
    • Custom designer lighting
    • Natural stone surfaces
    • Premium hardwood & carpet flooring
    • Heated driveway

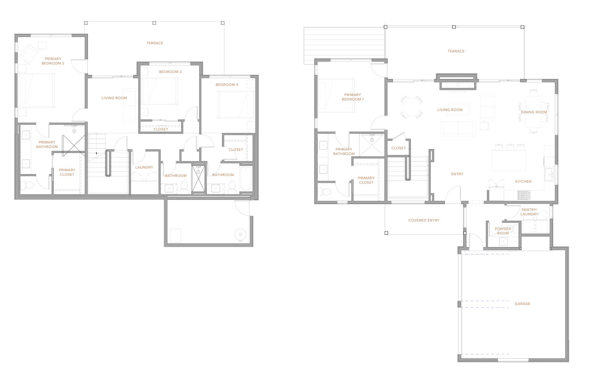
    The Pioneer
    4 Bedrooms
    4 Full Baths + Powder Room
    2,609 SQ FT

    The Maverick
    4 Bedrooms
    4 Full Baths + Powder Room
    2,618 SQ FT

    Featuring expansive windows, private terraces and finishes inspired by Glacier’s celebrated architecture, these homes invite you to live in rhythm with the mountains. From morning coffee with sunrise views to evenings under starlit skies, life at Clubhouse Village places you at the heart of the Glacier lifestyle.

    View Brochure View Finishes

    Clubhouse Village Floor Plans

    • The Pioneer

      caret

      4 Bedrooms | 4 Full Baths + Powder Room
      Lots 1–4
      Price Available Upon Request

    • The Maverick

      caret

      4 Bedrooms | 4 Full Baths + Powder Room
      Lots 6–8
      Price Available Upon Request

    Life at Clubhouse Village

     

    From your doorstep, enjoy the best of Glacier’s amenities: golf, dining and relaxation at the Mountain Clubhouse, just steps away. Perfectly positioned between downtown Durango and Purgatory Ski Resort, Clubhouse Village offers easy access to year-round adventure, whether skiing in the winter, hiking in the summer or savoring quiet evenings under starlit skies.

     

A Rare Opportunity

Construction began in Fall 2024, offering a limited chance to be among the first to call Clubhouse Village home.

View All Listings

Hold & Drag

Featured Clubhouse Village Listings

Our Glacier-Carved Landscape is Your Story to Shape

Inquire Today

*Indicates Required

Inquire

"*" indicates required fields

This field is for validation purposes and should be left unchanged.
Name*
Are you a broker?*
I want more information on:*
Mark all that apply.
I am interested in:*
Mark all that apply.